¡¾ÉìËõÆ÷ϵÁС¿
¡¾´«Á¦½ÓͷϵÁС¿
¡¾·ÀË®Ì×¹ÜϵÁС¿
¡¾²¹³¥Æ÷ϵÁС¿
¡¾Ï𽺽ÓͷϵÁС¿

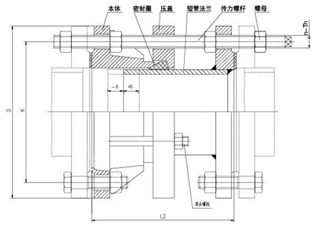
´«Á¦½ÓÍ·ÊDZᢷ§ÃÅ£¬¹ÜµÀµÈÉ豸Óë¹ÜµÀÁ¬½ÓµÄвúÆ·£¬Í¨¹ýÈ«ÂÝ˨°ÑËüÃÇÁ¬½ÓÆðÀ´£¬Ê¹Æä³ÉΪÕûÌ壬²¢ÓÐÒ»¶¨µÄÎ»ÒÆÁ¿£¬·½±ã°²×°¡£¿É³ÐÊܹÜÏßµÄÖáÏòѹÁ¦¡£ÕâÑù¾Í¿ÉÒÔÔÚ°²×°Î¬ÐÞʱ£¬¸ù¾ÝÏÖ³¡°²×°³ß´ç½øÐе÷Õû£¬ÔÚ¹¤×÷ʱ£¬²»½öÌá¸ß¹¤×÷ЧÂÊ£¬¶øÇҶԱᢷ§ÃǵȹܵÀÉ豸Æðµ½Ò»¶¨±£»¤×÷Óá£
´«Á¦½ÓÍ·ÊDZᢷ§ÃÅ£¬¹ÜµÀµÈÉ豸Óë¹ÜµÀÁ¬½ÓµÄвúÆ·£¬Í¨¹ýÈ«ÂÝ˨°ÑËüÃÇÁ¬½ÓÆðÀ´£¬Ê¹Æä³ÉΪÕûÌ壬²¢ÓÐÒ»¶¨µÄÎ»ÒÆÁ¿£¬·½±ã°²×°¡£¿É³ÐÊܹÜÏßµÄÖáÏòѹÁ¦¡£ÕâÑù¾Í¿ÉÒÔÔÚ°²×°Î¬ÐÞʱ£¬¸ù¾ÝÏÖ³¡°²×°³ß´ç½øÐе÷Õû£¬ÔÚ¹¤×÷ʱ£¬²»½öÌá¸ß¹¤×÷ЧÂÊ£¬¶øÇҶԱᢷ§ÃǵȹܵÀÉ豸Æðµ½Ò»¶¨±£»¤×÷Óá£
VSSJAFÐÍË«·¨À¼ËÉÌ×´«Á¦½ÓÍ·ÊÊÓ÷¶Î§£º
VSSJAFÐÍË«·¨À¼ËÉÌ×´«Á¦½ÓÍ·ÊÊÓÃÓÚÊäËͺ£Ë®¡¢µË®¡¢ÀäÈÈË®¡¢ÒûÓÃË®¡¢Éú»îÎÛË®¡¢ÔÓÍ¡¢È¼ÓÍ¡¢Èó»¬ÓÍ¡¢³ÉÆ·ÓÍ¡¢¿ÕÆø¡¢ÃºÆø¡¢Î¶Ȳ»¸ßÓÚ250¶ÈµÄÕôÆûºÍ¿ÅÁ£·Û×´µÈ½éÖÊ¡£
VSSJAFÐÍË«·¨À¼ËÉÌ×´«Á¦½ÓÍ·Óŵ㣺
¡¡¡¡1.°²×°¼òµ¥·½±ã¡¢·½±ã·§ÃŰ²×°¡¢¿É³ÐÊܹÜÏßµÄÖáÏòÀÁ¦¡£
¡¡¡¡2.¸Ã²úÆ·²ÉÓýðÊôÖýÔì»òº¸½Ó×é³É£¬ËÉÌײ¿Î»Ñ¡ÓÃÌÝÐÎÏð½ºÃÜ·âȦ£¬ÔÚѹ¸ÇºÍÂÝ˨µÄ×÷ÓÃÏ¡£
¡¡¡¡3.ÀûÓÃÏð½ºÑ¹Ëõµ¯ÐÔ±äÐÎÔÀí¡£ÆÈʹÃÜ·âȦ±äÐÎÓÚ½ÓÍ·±¾ÌåÉìËõ¹ÜÍâ±ÚÖ®¼ä½øÐо²ÃÜ·â¡£
¡¡¡¡4.½ðÊôºÍÃÜ·âȦÑϸñ°´Ê¹ÓÃÐÔÄܼ°Óû§ÒªÇóÑ¡ÓᣲÄÖÊÍⲿͿװ¸ßÇ¿¶È·À¸¯ÆáÁÏ£¬¸÷²¿Á¬½ÓÂÝ˨Ϊ ¡¡¡¡¸ßÇ¿¶È̼¸Ö»ò²»Ðâ¸ÖÖÆ×÷¡£ÒòΪ±¾ÌåÓëÉìËõ¹ÜÖ®¼äÓÐÒ»¶¨¼ä϶£¬Ê¹Ëü¾ßÓÐÒ»¶¨µÄÖáÏòºÍ¾¶ÏòÎ»ÒÆ¡£
¡¡¡¡5.ÔڹܵÀÖÐÄÜÓÐЧµÄ²¹³¥ºÍ»º½â¹ÜµÀºÍä°åÍÆÁ¦£¬ÓÖÄܱãÓÚË®±Ã£¬·§ÃŵݲװάÐÞ¸ü»»£¬ÊµÎª¹ÜµÀ°²×°ÔËÐÐÒµÖÐ×îΪÀíÏëµÄÅäÌײúÆ·¡£
VSSJAFÐÍË«·¨À¼ËÉÌ×´«Á¦½ÓÍ·°²×°¼òҪ˵Ã÷£º
VSSJAFÐÍË«·¨À¼ËÉÌ×´«Á¦½ÓÍ·ÊÊÓÃÓÚÁ½±ß¾ùÓë·¨À¼Á¬½ÓµÄ¹ÜµÀÖУ¬°²×°Ê±µ÷Õû²úÆ·Á½¶ËÓë·¨À¼µÄ°²×°³¤¶È£¬¶Ô½ÇÒÀ´Î¾ùÔÈÅ¡½ôѹÂÝ˨£¬Ê¹Æä³ÉΪһ¸öÕûÌ壬²¢ÓÐÒ»¶¨µÄÎ»ÒÆÁ¿£¬·½±ã°²×°Î¬ÐÞʱ£¬¸ù¾ÝÏÖ³¡³ß´ç½øÐе÷ÕûÔÚ¹¤×÷ʱ£¬¿ÉÒÔ°ÑÖáÏòÍÆÁ¦´«µÝÖÁÕû¸ö¹ÜµÀ¡£

¼¼Êõ²ÎÊý£º
|
¹«³ÆÍ¨¾¶
|
¹Ü×ÓÍâ¾¶
|
ÍâÐγߴç
|
ÉìËõÁ¿
|
·¨À¼Á¬½Ó³ß´ç
|
||||||
|
Dw
|
L
|
L1
|
0.6MPa
|
1.0MPa
|
||||||
|
D
|
D1
|
n-d¡£
|
D
|
D1
|
n-d¡£
|
|||||
|
65
|
76
|
340
|
105
|
50
|
160
|
130
|
4-¡é14
|
185
|
145
|
4-¡é18
|
|
80
|
89
|
190
|
150
|
4-¡é18
|
200
|
160
|
8-¡é18
|
|||
|
100
|
108
|
210
|
170
|
220
|
180
|
|||||
|
114
|
||||||||||
|
125
|
133
|
240
|
200
|
8-¡é18
|
250
|
210
|
||||
|
140
|
||||||||||
|
150
|
159
|
265
|
225
|
285
|
240
|
8-¡é22
|
||||
|
168
|
||||||||||
|
200
|
219
|
320
|
280
|
340
|
295
|
|||||
|
250
|
273
|
370
|
335
|
12-¡é18
|
395
|
350
|
12-¡é22
|
|||
|
300
|
325
|
350
|
130
|
65
|
440
|
395
|
12-¡é22
|
445
|
400
|
|
|
350
|
377
|
490
|
445
|
505
|
460
|
16-¡é22
|
||||
|
400
|
426
|
540
|
495
|
16-¡é22
|
565
|
515
|
16-¡é26
|
|||
|
450
|
480
|
595
|
550
|
615
|
565
|
20-¡é26
|
||||
|
500
|
530
|
645
|
600
|
20-¡é22
|
670
|
620
|
||||
|
600
|
630
|
755
|
705
|
20-¡é26
|
780
|
725
|
20-¡é30
|
|||
|
700
|
720
|
860
|
810
|
24-¡é26
|
895
|
840
|
24-¡é30
|
|||
|
800
|
820
|
590
|
220
|
130
|
975
|
920
|
24-¡é30
|
1015
|
950
|
24-¡é33
|
|
900
|
920
|
1075
|
1020
|
1115
|
1015
|
28-¡é33
|
||||
|
1000
|
1020
|
1175
|
1120
|
28-¡é30
|
1230
|
1160
|
28-¡é36
|
|||
|
1200
|
1220
|
1405
|
1340
|
32-¡é33
|
1455
|
1380
|
32-¡é40
|
|||
|
1400
|
1420
|
1630
|
1560
|
36-¡é36
|
1675
|
1590
|
36-¡é42
|
|||
|
1500
|
1520
|
1730
|
1660
|
-
|
-
|
-
|
||||
|
1600
|
1620
|
1830
|
1760
|
40-¡é36
|
1915
|
1820
|
40-¡é48
|
|||
|
1800
|
1820
|
2045
|
1970
|
44-¡é40
|
2115
|
2020
|
44-¡é48
|
|||
|
2000
|
2020
|
2265
|
2180
|
48-¡é42
|
2325
|
2230
|
48-¡é48
|
|||
|
2200
|
2220
|
2475
|
2390
|
52-¡é42
|
2550
|
2440
|
52-¡é56
|
|||
|
2400
|
2420
|
2685
|
2600
|
56-¡é42
|
2760
|
2650
|
56-¡é56
|
|||